2018年6月25日,來自深圳的老用戶為秦山核電外圍系統采購DN1300mm單球橡膠軟接頭膨脹節。
#:2018年6月25日
#:深圳
#:老用戶
#:單球橡膠軟接頭膨脹節(橡膠接頭)
#:秦山核電
#:橡膠膨脹節 可曲撓橡膠接頭 出口膨脹節 單球橡膠軟接頭
北上廣深中國四大一線城市,顯然深圳排名第四,深圳的發展是有目共睹的,從30年前的小漁村發展到現在的國際化大都市,真的是稱得上發生了翻天覆地的變化。深圳是年輕人的城市,深圳人平均年齡25歲左右,充滿著年輕的氛圍,深圳吸引著來自全國各地的年輕人,來發展,圓自己的夢想。深圳是一座創業之都,也可以說深圳是全國最佳創業城市,深圳不僅誕生像騰訊,華為這樣有名企業的城市,同時也誕生了許許多多的科技型中小企業。深圳依靠香港發展起來的城市,也就是說,沒有香港,就沒有現在的深圳,深圳這座城市給人一種清新、現代化、環境優美的城市。
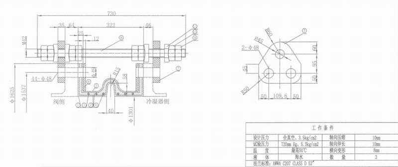
名稱:52”橡膠接頭膨脹節
口徑:DN1300mm
法蘭標準:AWWA-C207-CLASSD-52"
軸向壓縮:10mm
軸向伸長:10mm
橫向變形:8mm
壓力:全真空,3.5kg/cm2
試驗壓力:720mm Hg 真空,5.3kg/cm2
溫度:.高50℃
液體:海水
長度:322mm
法蘭材質:Q235(電鍍處理)
橡膠材質:氯丁橡膠
簾線布層數:6層
內層橡膠厚度:5mm
內面橡膠:氯丁橡膠
加強層:聚酯簾布
加強環:20#
外面橡膠:氯丁橡膠
擋環:Q235-B
限位耳板:Q235-B
限位螺桿:Q235-B
螺母:Q235-B
球形螺母:Q235-B
球形墊片:Q235-B
橡膠膨脹節圖紙:

口徑:DN1300mm
法蘭標準:AWWA-C207-CLASSD-52"
軸向壓縮:10mm
軸向伸長:10mm
橫向變形:8mm
壓力:全真空,3.5kg/cm2
試驗壓力:720mm Hg 真空,5.3kg/cm2
溫度:.高50℃
液體:海水
長度:322mm
法蘭材質:Q235(電鍍處理)
橡膠材質:氯丁橡膠
簾線布層數:6層
內層橡膠厚度:5mm
內面橡膠:氯丁橡膠
加強層:聚酯簾布
加強環:20#
外面橡膠:氯丁橡膠
擋環:Q235-B
限位耳板:Q235-B
限位螺桿:Q235-B
螺母:Q235-B
球形螺母:Q235-B
球形墊片:Q235-B
橡膠膨脹節圖紙:

秦山核電站是中國自行設計、建造和運營管理的.一座30萬千瓦壓水堆核電站,地處浙江省嘉興市海鹽縣.由中國核工業集團公司100%控股,秦山核電公司負責運行管理.秦山核電站采用目前世界上技術成熟的壓水堆,核島內采用燃料包殼、壓力殼和安全殼3道屏障,能承受.限事故引起的內壓 、高溫和各種自然災害.一期工程1984年開工,1991年建成投入運行.年發電量為17 億千瓦時.二期工程將在原址上擴建2臺60萬千瓦發電機組,1996年已開工.三期工程由中國和加拿大.合作,采用加拿大提供的重水型反應堆技術,建設兩臺70萬千瓦發電機組,于2003年建成.
(淞江集團展廳)




淞江證書:《2018年橡膠接頭性能檢測報告結果》。本報告主要檢測了:淞江集團橡膠接頭的拉伸強度、拉斷伸長率、低溫脆性、橡膠與織物粘合強度、熱空氣老化、拉伸強度變化率、拉斷伸長率變化率、耐夜體、拉伸強度變化率項目。

